Description de l’hébergement
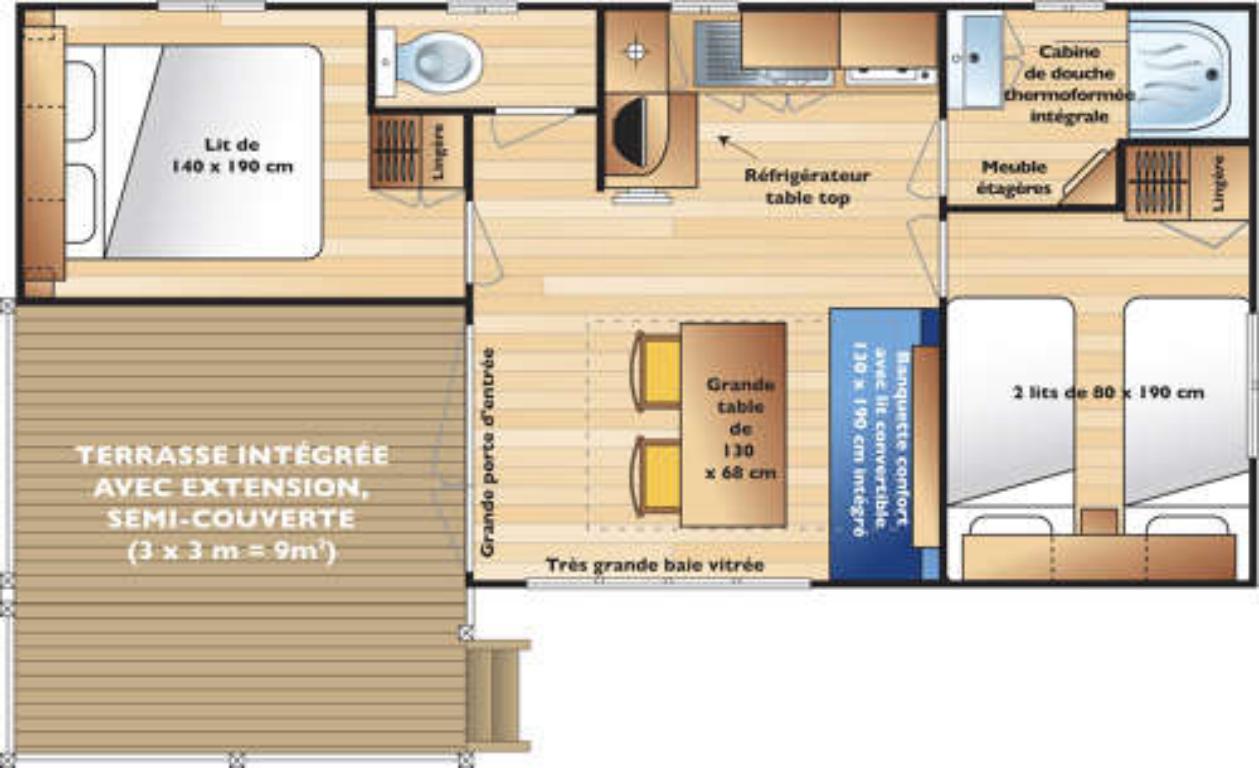
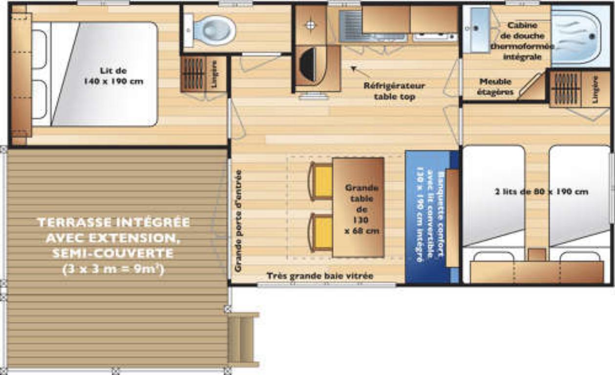
Année : 2017 – Surface : 24 m² – Capacité maximale : 4 personnes
Coin nuit : une chambre avec 1 lit double (140×190), une chambre avec 2 lits simples (90×190) côte à côte, oreillers et couvertures fournis.
Coin salon/cuisine : cuisine équipée (évier, feux gaz, réfrigérateur, cafetière, micro-ondes, vaisselle), télévision, chauffage.
Sanitaire : salle d’eau avec douche et lavabo, WC séparés.
Extérieur : terrasse semi-couverte et salon de jardin.
Non équipé de climatisation.
Animaux admis (selon conditions)
